HSU House
| Danby, NY | 2010 |
| Single Family House | Built |
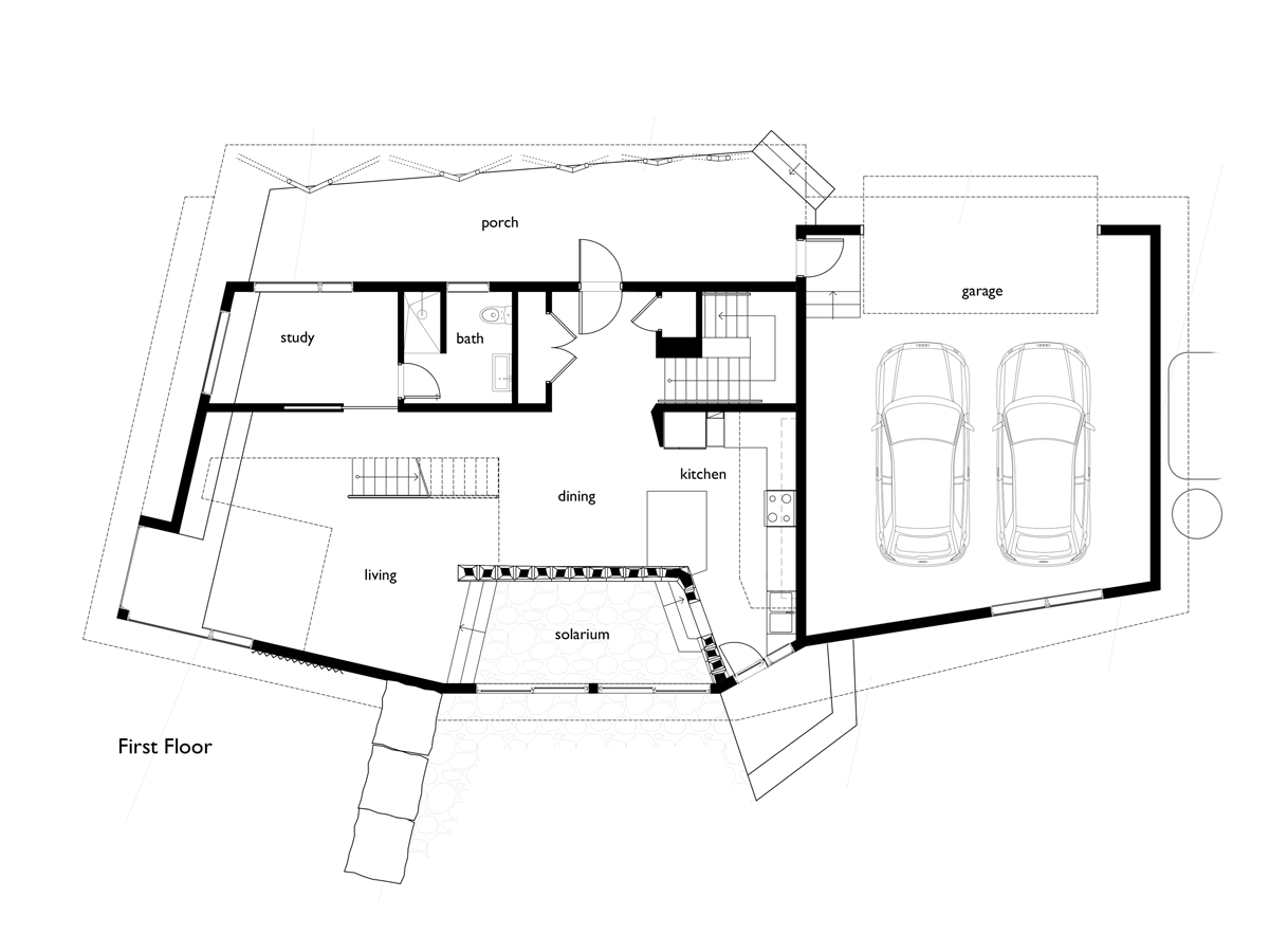
The Hsu House, is a small 2200 sq.ft. house designed using passive solar principles to create an inexpensive, energy efficient dwelling for a young family. Rising out of a hillside south of Ithaca in upstate New York, the bifurcating monopitch roof covers a house organized around a three story main living space, which functions as both spatial nexus and a trombe wall assisted ventilation stack. This space is bifurcated by an interior south facing cast-in-place concrete heat sink mass wall, which stores sensible heat and animates light, creating an all season solarium that, in the summer, opens and unfolds into the natural landscape. Exterior surface of the house features solar-responsive siding pattern animating facade color composite from dark to light according to the its orientation.
  Dwell Magazine
  
  Green Building & Design Magazine
  
   ArchDaily
  
  6sqft.com
  
  Inhabitat
  
| DESIGN PRINCIPALS: Dana Cupkova + Kevin Pratt | DESIGN TEAM: Man Kim, Jamie Pelletier, Monica Freundt, Kyriaki Kasabalis | GENERAL CONTRACTOR: Hansen Design & Construction | MASS WALL FORMWORK FABRICATION: CCC&M, LLC; Frank Parish, Cornell |
 
           
           
           
           
           
           
           
           
           
           
          